Elegant two-storey villa with terraces in Rojales (276237)
-
Location
Spain, Аликанте
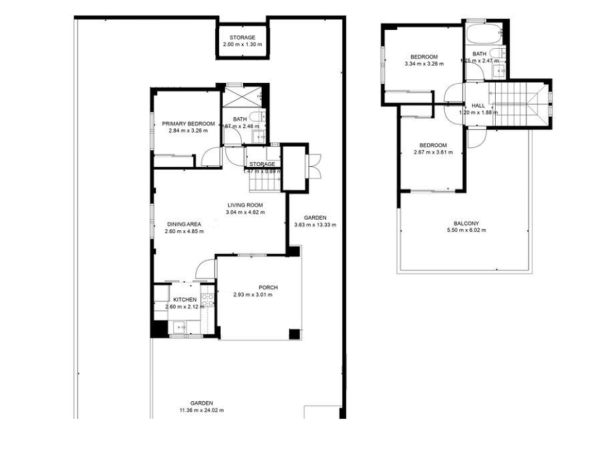
The villa is a cozy two-storey chalet with a total construction of 112 m², located in the picturesque area of Rojales.
The house was built in 2007 and is in a well-kept condition, at a high level of comfort and modern comfort.
Description of the premises:
- Ground floor: A spacious and modern kitchen, equipped with all the necessary facilities, has an exit to the living room with a fireplace and a dining area. The kitchen is separated by glass sliding doors, which allows you to easily transform the space, combining or dividing it as needed. Also on this level are a bedroom, a bathroom and a laundry room. At the entrance to the villa there is a terrace that can be completely glazed to create a comfortable space inside and connecting with the garden.
- First floor: There are two spacious bedrooms, equipped with air conditioning with low light and cooling, and a bathroom with a bathtub. As a result, the bedrooms have access to a sunny terrace of 30 m², from where you can enjoy stunning views of the mountains.
Additional features:
- Plot: 225 m² with private parking.
- Terraces: Open and glazed internal terraces.
- Services and amenities: Central air conditioning, security door, fireplace, satellite TV, fenced area for security and privacy.
- Annual community costs: 480 €
This villa is ideal for those who value comfort, privacy and beautiful views of nature.
Information updated: 05.11.2024
Upon subscription, you’ll be prompted to complete a brief survey gathering essential details about your business, enabling us to craft tailored CRO strategy. You’ll receive instructions for granting our team access to your website platform, along with credentials to access our project management tool. There, you can monitor, review, and approve each step of your CRO journey.
Upon subscription, you’ll be prompted to complete a brief survey gathering essential details about your business, enabling us to craft tailored CRO strategy. You’ll receive instructions for granting our team access to your website platform, along with credentials to access our project management tool. There, you can monitor, review, and approve each step of your CRO journey.

According to these data, the optimal length of a video is up to 2 minutes, and then the engagement of viewers drops with every second. BuzzSumo also received similar results – according to their data, more users are attracted to videos of 1-1.5 minutes.
Upon subscription, you’ll be prompted to complete a brief survey gathering essential details about your business, enabling us to craft tailored CRO strategy. You’ll receive instructions for granting our team access to your website platform, along with credentials to access our project management tool. There, you can monitor, review, and approve each step of your CRO journey.
Upon subscription, you’ll be prompted to complete a brief survey gathering essential details about your business, enabling us to craft tailored CRO strategy. You’ll receive instructions for granting our team access to your website platform, along with credentials to access our project management tool. There, you can monitor, review, and approve each step of your CRO journey.
Upon subscription, you’ll be prompted to complete a brief survey gathering essential details about your business, enabling us to craft tailored CRO strategy. You’ll receive instructions for granting our team access to your website platform, along with credentials to access our project management tool. There, you can monitor, review, and approve each step of your CRO journey.
catalog of Top 10
buildings in Alanya
62 000 € - 460 000 €) and get access to current
offers with prices from developers (no commission).
2025