Квартира в новостройке в Пунта-Прима, всего в 400 метрах от моря (197237)


339000 € 397308 $ 293574 £
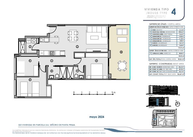
Площадь
117м²
Год сдачи
Мебель
Частично
Комнат
3 спальни

Локация
  1. Локация
    Испания, Торревьеха
  2. До моря
    400м

Инфраструктура и комфорт
  1. Балкон/Терраса Балкон/Терраса
  2. Бассейн Бассейн
  3. Закрытая территория Закрытая территория
  4. Охрана Охрана
  5. Лифт Лифт
  6. Детская площадка Детская площадка

Описание

Просторная 3-комнатная квартира с 2 ванными комнатами расположена на третьем этаже современного жилого комплекса и предлагает комфорт и удобства для всей семьи.

Квартира с южной ориентацией обеспечивает обилие естественного света, а терраса площадью 20 м² подарит вам возможность наслаждаться прекрасным видом на зеленую зону.

Внутри вас ждут 92 м² полезной площади и 117 м² построенной территории, с продуманной планировкой, включающей американскую кухню, уютную гостиную, а также прачечную для вашего удобства.

Комплекс оборудован всем необходимым для современной жизни: канальным кондиционером, тепловым насосом для отопления, двойным остеклением, и системой безопасности с защитной дверью.

Жилой комплекс предлагает великолепные зоны общего пользования: летний бассейн, зимний бассейн с подогревом, детский бассейн, джакузи, тренажерный зал, сауна, и множество развлекательных площадок, включая зоны для игры в петанк, шахматы, настольный теннис и паддл-теннис. Для детей предусмотрена игровая площадка, а для любителей активного отдыха — парковка для велосипедов.

Дополнительно в стоимость квартиры включены парковочное место и кладовая комната.

Строительство будет завершено к лету 2026 года, с возможностью рассрочки на весь период строительства.

Не упустите шанс стать обладателем современной квартиры в одном из лучших мест для жизни и отдыха на побережье!

Информация обновлена: 27.09.2024 г.


Обновлено 27.09.2024

+90 507 250 10 73
Сообщение отправлено
Расскажем о локации, преимуществах и условиях
Сообщение отправлено
Отзывы
reviews-hayatestate
Дмитрий
5
star star star star star
Выражаю огромную благодарность профессионалам своего дела Татьяне и Юлии. Приятно иметь дело с профессионалами.
hayatestate-review-06052024
Азат
5
star star star star star
Всем здравствуйте, позвольте выразить благодарность вашему менеджеру по продажам Юле Попович ...
hayatestate-review-30042024
Ирина
5
star star star star star
Сотрудничали с Юлией Попович. Рекомендую. Поможет, подскажет, сопроводит по сделке. Были разные нюансы, во всем оказала помощь. Очень довольна.
hayatestate-reviews
Валентина Павловская
5
star star star star star
Дуже приємні враження від співпраці з Андрієм і Аленою Леонтьевою.
hayatestate-reviews
Круглов Алексей
5
star star star star star
Я дуже задоволений роботою Наталі. Вона завжди на зв'язку, приємна дівчина, і в мене не виникало жодних запитань.
hayatestate-reviews
Вячеслав и Катерина Зиборовы
5
star star star star star
Мы очень довольны работой Ивана. У нас не возникало никаких не решенных вопросов, так как Иван всегда был на связи и оперативно решал все задачи.
hayatestate-reviews
Сергей Серик
5
star star star star star
Я хотел бы поделиться очень приятным опытом работы с менеджером Дмитрием
All
reviews
All
reviews
FAQ

Мечтаете иметь квартиру или дом у моря на средиземноморском побережье? А может, вас интересует недвижимость в Европе? Или вы всегда хотели открыть бизнес за границей и получать пассивный доход, проживая в Киеве? Какие бы цели вы не преследовали, мы всегда можем предложить лучшие варианты.

Hayat Estate – агентство, которое готово помочь вам приобрести недвижимость за рубежом согласно вашим требованиям и выделенному бюджету. Все что нужно – оставить заявку на портале и затем обсудить детали с менеджером.

Еще не так давно недвижимость за границей была недосягаемой мечтой для многих. Однако сейчас ее приобретение не кажется таким сложным. Профессиональный подбор и поиск квартиры/дома, помощь в оформлении сделки купли/продажи, оценка уровней риска для инвесторов: все это входит в перечень возможностей агентства Hayat Estate.

Специально для наших клиентов мы разработали портал, на котором разместили удобный каталог с подробным описанием предложений из самых разных уголков Европы и Азии. В частности, на сайте размещена актуальная недвижимость Турции, Великобритании, Франции, Германии, Грузии, Индонезии, ОАЭ, Черногории, Испании, Португалии, Польши, Северного Кипра, Таиланда.

Зарубежная недвижимость – это однозначно выгоднее, чем ипотека в Украине или покупка квартиры в Киеве. Средние цены на жилье в популярных туристических странах равны стоимости аналогичного предложения на родине. При этом за границей вы всегда можете превратить свое приобретение в выгодный бизнес.

  • Можно купить дом за границей у моря для постоянного проживания и наконец-то осуществить свою давнюю мечту.
  • Для украинцев квартира за границей – основание для получения ВНЖ и гражданства в последствии. Поэтому если вы заинтересованы переехать на ПМЖ, то покупка недвижимости может значительно упростить получение документов.
  • Инвестиция в недвижимость за рубежом – выгодное решение для украинцев, в частности. Согласно последним новостям, процент от вложений в строительство и покупка квартиры за границей приносит больший процент, чем депозит в банке.
  • Сдавать квартиру или дом за границей, особенно на первой береговой линии у моря, крайне выгодно в разгар туристического сезона. В остальное время вы можете проживать там.
  • Цены на коммерческую и жилую недвижимость с каждым годом только растут. Всегда можно продать квартиру или дом за рубежом и выручить довольно крупную разницу от продажи.

Больше преимуществ и особенностей от покупки квартиры и любой другой зарубежной недвижимости в целом можно узнать на индивидуальной консультации с менеджером Hayat Estate.

Скачайте
каталог TОП 10
новостроек Алании
на осень 2025 (квартиры
от 62 000 € - 460 000 € и получите доступ к предложениям с прайсами от застройщиков
(без комиссии)
image image
up to 12% on rentals
up to 15-40% on resale
Осень
2025
62 000 € - 460 000 €

    Нажимая на кнопку, Вы соглашаетесь с обработкой ваших персональных данных согласно Политике конфиденциальности компании
    Сообщение успешно отправлено
    Зміни збережено.