Iskele Apartment Complex: Comfort by the Mediterranean Sea (040157)
-
Location
Northen Cyprus, Iskele
-
To the beach
900m
The residential complex is located in the prestigious Iskele area, just 900 meters from the Mediterranean Sea.
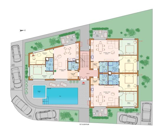
This project consists of a two-storey block that offers comfortable housing in a cozy atmosphere:
- On the first floor there are 3 two-bedroom apartments, each with a garden.
- On the second floor there are 3 one-bedroom apartments with access to a private roof terrace.
Main characteristics:
- Total area of the complex: 607.7 m²
- Outdoor swimming pool
- Children's pool
- Parking
Infrastructure nearby:
- Casino Hotel Merit Royal Iskele - a famous hotel with a casino
- Zaradise Garden - a picnic area on the sandy coast
- Restaurants, shops, pharmacies, schools and historical sights of Cyprus
Payment plan:
- Down payment: 40%
- Interest-free installments: 60% for 1 year
Construction period:
- Start of construction: November 2024
- Completion of construction: November 2025
A residential complex with a Turkish title, which guarantees transparency and reliability of the transaction.
Information updated: 30.06.2025
Upon subscription, you’ll be prompted to complete a brief survey gathering essential details about your business, enabling us to craft tailored CRO strategy. You’ll receive instructions for granting our team access to your website platform, along with credentials to access our project management tool. There, you can monitor, review, and approve each step of your CRO journey.
Upon subscription, you’ll be prompted to complete a brief survey gathering essential details about your business, enabling us to craft tailored CRO strategy. You’ll receive instructions for granting our team access to your website platform, along with credentials to access our project management tool. There, you can monitor, review, and approve each step of your CRO journey.

According to these data, the optimal length of a video is up to 2 minutes, and then the engagement of viewers drops with every second. BuzzSumo also received similar results – according to their data, more users are attracted to videos of 1-1.5 minutes.
Upon subscription, you’ll be prompted to complete a brief survey gathering essential details about your business, enabling us to craft tailored CRO strategy. You’ll receive instructions for granting our team access to your website platform, along with credentials to access our project management tool. There, you can monitor, review, and approve each step of your CRO journey.
Upon subscription, you’ll be prompted to complete a brief survey gathering essential details about your business, enabling us to craft tailored CRO strategy. You’ll receive instructions for granting our team access to your website platform, along with credentials to access our project management tool. There, you can monitor, review, and approve each step of your CRO journey.
Upon subscription, you’ll be prompted to complete a brief survey gathering essential details about your business, enabling us to craft tailored CRO strategy. You’ll receive instructions for granting our team access to your website platform, along with credentials to access our project management tool. There, you can monitor, review, and approve each step of your CRO journey.
catalog of Top 10
buildings in Alanya
62 000 € - 460 000 €) and get access to current
offers with prices from developers (no commission).
2025